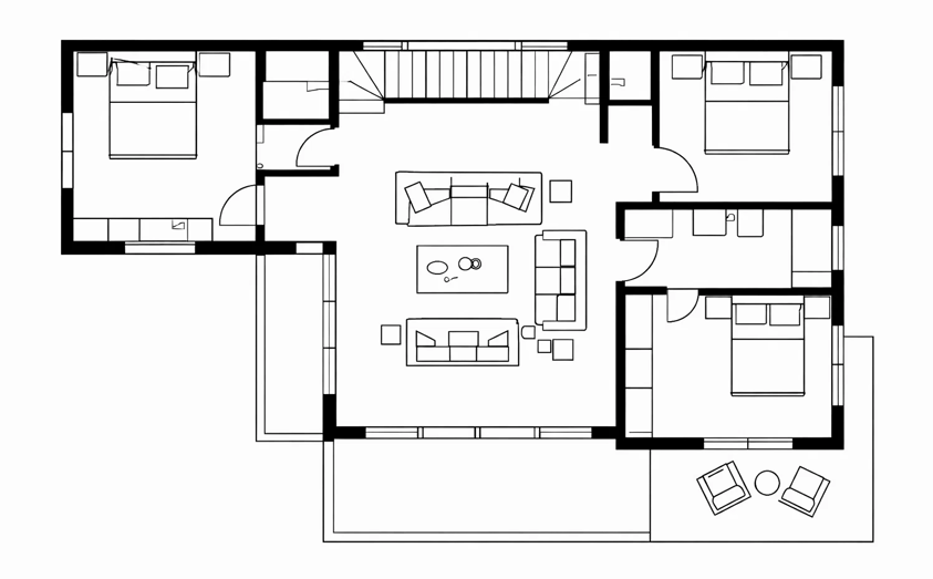
一楼平面设计图(室内140平方米)

本款现代轻奢风双层别墅设计,整体以轻奢质感与度假氛围为核心,

实现室内空间与户外景观的自然融合,打造兼具格调与实用的理想居所。

一层为公共互动区,以客餐厨一体化空间为核心,衔接私人泳池与户外花园,

打造通透奢适的社交主场。开放式厨房与餐客厅联动,适配日常与聚会场景,动线流畅。

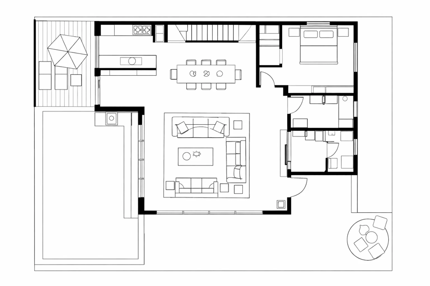
二楼平面设计图(室内140平方米)

二层为私密休憩区,三间卧室搭配家庭起居厅,

双卫浴配置保障居住舒适,兼顾家人隐私与互动需求。

一楼花园效果图

汀步引导行走路径,不同功能区以材质区分边界,避免动线交叉,保障空间秩序。

开放式布局 + 茂密绿植,既利于通风散热,又能形成私密屏障,适配热带 / 亚热带气候。

通过木质平台、石质汀步、草坪、水景和绿植,打造出立体的景观层次,视觉通透且富有自然感。

划分出沙发休憩区、茶歇区与吊椅区,满足会客、独处、观景等不同需求,功能灵活。

一楼泳池休闲区效果图

泳池区、躺卧区、会客区互不干扰,满足游泳、休憩、社交等多元需求,符合别墅休闲场景。

开放式布局 + 户外遮阳伞,利于通风散热;石材地面防滑耐水,适配泳池周边潮湿环境。

大面积推拉门实现室内外无界衔接,泳池与休闲区、客厅形成流畅动线,提升度假感与采光效率。

热带绿植 + 暖光灯笼 + 浅色调软装,弱化边界感,既适配热带气候,又营造出松弛的度假氛围。

一楼客厅效果图

U 型沙发围合出核心会客区,茶几与边几动线流畅,满足社交与休憩需求。

主灯 + 筒灯 + 落地灯组合,兼顾基础照明与氛围营造,适配不同使用场景。

浅米色沙发 + 木色家具 + 大理石背景,搭配蓝抱枕点缀,现代简约又温暖,视觉舒适高级。

大面积落地窗引入自然光,将户外景观与室内联动,空间开阔且富有呼吸感。

一楼餐厅效果图

酒柜、餐桌、落地窗布局有序,备餐、就座、观景动线互不干扰,符合日常使用逻辑。

线性吊灯聚焦餐桌,筒灯 + 落地灯补充环境光,兼顾功能照明与氛围营造。

深木色家具与浅灰大理石地面形成冷暖对比,金属线条与艺术挂画点缀,视觉层次丰富且质感细腻。

暖光线性吊灯 + 柔和自然光,搭配花艺与绿植,让空间兼具仪式感与松弛感,适配用餐与轻社交场景。

一楼厨房效果图

 U 型布局 + 中岛设计,洗、切、炒、备餐动线流畅,符合人体工学,提升烹饪效率。

玻璃移门分隔厨房与公共区域,既阻挡油烟又保证采光,让小空间更显开阔。

白色柜体 + 大理石纹理墙面,搭配金属拉手与暗藏灯带,极简轻奢,易清洁且质感突出。

高柜 + 抽屉 + 玻璃吊柜组合,实现分类收纳,嵌入式电器释放台面空间,整洁有序。

一楼卧室装修效果图

睡眠区、梳妆区、收纳区布局有序,互不干扰,符合卧室休憩与梳妆的核心需求。

大面积落地窗搭配双层窗帘,纱帘保证采光,厚帘保障隐私,适配不同时段使用。

软包背景墙 + 金属线条 + 木色家具,搭配水晶吊灯,营造出沉稳高级的睡眠氛围,质感细腻。

暖光灯具 + 浅色调软装,搭配地毯弱化噪音,提升空间包裹感,助力放松入眠

一楼卫生间效果图

洗漱区、淋浴区、浴缸区与马桶区独立划分,动线互不干扰,符合卫浴使用的行为逻辑。

大面积落地窗引入自然采光与通风,既提升空间通透感,也能有效减少潮湿滋生细菌的问题。

浅灰大理石纹理搭配暖光灯带,营造出温润雅致的氛围,悬浮式台盆柜与极窄边框淋浴房,让空间更轻盈整洁。

双台盆设计满足多人使用需求,智能马桶与独立浴缸提升了生活品质,自然景观窗也增强了使用时的愉悦感。

一楼洗衣房效果图

洗烘一体机竖向叠放,洗衣台与晾晒区连贯分布,符合洗衣 - 晾晒 - 收纳的完整动线,操作无折返。

上下柜 + 开放格组合,兼顾隐藏收纳与展示,侧边预留洗衣篮区,脏衣收纳便捷,无空间浪费。

浅木色与浅灰柜体搭配,色调柔和,无杂乱感,大窗引入自然光,让空间更通透明亮。

台盆高度适配操作,开放格灯带补光,挂衣杆临时晾晒方便,提升洗衣体验的舒适度。

二楼起居室房效果图

沙发围合式摆放,形成核心交流区,电视墙与沙发正对,观影与社交动线互不干扰。

大尺寸茶几与沙发比例协调,开放柜与矮柜组合,兼顾展示与收纳,避免空间拥挤。

大理石、木饰面与布艺搭配,冷暖平衡,视觉温润高级,提升空间质感。

嵌入式灯带 + 筒灯分层照明,纱帘柔化自然光,营造柔和通透的居家氛围。

二楼主卧效果图

 床区、收纳区、观景区互不干扰,玻璃衣柜与床头软包既分隔空间又保证通透感,符合卧室休憩核心需求。

床与床头柜、衣柜间距合理,预留通行与活动空间,避免拥挤,适配大户型卧室尺度。

软包背景 + 金属线条 + 水晶吊灯,冷暖材质碰撞,床底灯带与落地灯分层照明,营造轻奢静谧的睡眠氛围。

大面积落地窗搭配双层窗帘,既柔化自然光,又能最大化城市夜景视野,提升居住体验。

二楼次卧效果图

床区居中,衣柜、妆区沿墙布局,功能区独立且动线顺畅,满足休憩、收纳与梳妆多重需求。

床与妆台、衣柜间距合理,预留充足活动空间,避免局促,适配大 / 中户型卧室尺度。

暖米色主色调 + 柔和灯光,软包背景与布艺材质结合,营造治愈静谧的睡眠氛围。

玻璃门衣柜 + 开放格设计,既实现衣物分类收纳,又提升空间通透感,美观又实用。

现代轻奢风双层别墅设计|度假质感氛围・全维奢居布局

装修为什么选择 WayMorn 平台

装修一套房子,动辄投入十几万甚至上百万,这可能是普通家庭最大的一笔消费。然而,装修行业信息极不对称,很多业主直到入住后才发现各种问题。

装修不需要靠运气,需要靠制度。WayMorn 平台通过一套严谨的服务体系,以及“房屋检测+装修监理+商务监督”三重保障体系,帮您把控风险,让您装修无烦恼。

 

1. 独立的第三方人员

WayMorn平台首创的“房屋检测+装修监理+商务监督”三重保障体系,配备了签约房屋检测师、装修监理和商务监督员。这些人不属于装修公司,他们的职责就是代表您去监督装修公司。

 

2. 选择合格的装修公司

与WayMorn签约的装修公司有很多,每一家装修公司都是经过严格审核,并实地考察认证后才挑选出来的。在您准备装修时,平台提供三家及以上的装修公司供您选择,直到您满意为止。

如果您选择的是其他装修公司,WayMorn的“房屋检测+装修监理+商务监督”三重保障体系依然可以为您提供服务。

 

3. 商务审核帮您节省资金

不要只看装修总价,要看每一个施工项目的单价、面积、工艺描述和材料品牌规格,要看看有没有漏项缺项。

某些装修公司在初期报价时,经常会漏掉很多必不可少的项目,总价看起来很便宜。等您签了合同开始施工后,就会被要求追加资金,这时候您已经停不下来,只能增加预算。

我们的商务监督员会帮您审核装修报价,剔除不合理的收费项,确保每一分钱都花在实处;核查装修中每一个必不可少的项目,避免装修公司后期加价、追加装修项目等常见的问题。

 

4. 装修前检测房屋安全问题

我们的房屋检测师会在您装修设计前,检测房屋安全问题,告诉您哪些地方可以拆哪些地方不能拆,以及其他工程安全事项,在设计与施工前就有效规避风险,保障您和您的家人入住后的人身安全。

 

5. 装修材料的选择认证

装修一套房子会用到的材料种类很多品牌很多,各类品牌质量差异巨大,价格也差异巨大,仅仅看外表或者上网搜索某个品牌的装修材料情况,非专业人士很难辨别品牌真伪或质量好坏。

比如一块劣质瓷砖看起来很好,价格也低,但用一年后就会变色。而电线、水管、防水涂料这些埋在墙里的材料,一旦使用了劣质的,可能出现电路起火、水管爆裂等问题。而后期维修费用非常高,最关键的是新补的材料和原先的不可能完全一样,会影响全屋的整体美观。

因此,我们的专业人员会帮您把关,确保材料货真价实,从源头杜绝质量隐患。

 

6. 施工全过程节点管理

装修工艺标准不透明,会产生很多问题。很多施工员为了赶进度,不按标准工序操作。比如,同样的瓷砖,铺贴工艺不同,寿命完全不同,空鼓、开裂、墙面不平整等问题在交房时很难察觉,在入住一两年后问题才会出现,为时已晚,只能忍受。

我们的装修监理人将实施全过程节点管理,在每一道工序完成后(尤其是水电、防水),验收合格才进行下一道工序,保障施工质量。

 

7. 竣工后验收

装修工程全部结束后,并不意味着大功告成,可能还会有一些质量问题。

WayMorn 平台将会组织联合验收小组,对您的房屋从安全到质量进行全方位检查验收,发现问题,及时整改,直到全部合格。

 

装修是一件专业且复杂的大事,与其在开工后因为各种增项和质量问题去争吵,不如在开始前就选择一个专业的装修平台。

如果您正准备装修,欢迎联系 WayMorn,为您提供专业、透明、省心的全管家式装修服务,让您的装修结果真正符合预期。


×