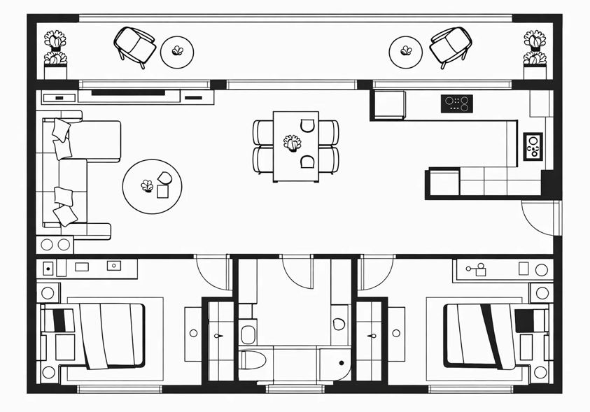
平面设计图(80平方米)

本款现代简约风洋房设计,以「简约纯粹、舒适宜居」为核心,融合利落线条与温润质感,打造高级

且温馨的居住空间。整体布局清晰,合理划分客餐厅、双卧、厨卫及阳台区,兼顾互动性与家庭私密感。

以客餐厅为中心串联空间,强化通透开阔感,优化生活动线,提升空间利用率。餐客分区明确,

搭配舒适卧室与实用厨卫,满足日常起居与高品质生活需求,实现美学与居住体验的平衡。

客厅效果图

L 型沙发围合出核心交流区,与落地窗、阳台形成自然动线,无空间浪费。

背景墙收纳柜 + 边几,兼顾展示与储物,避免空间杂乱。

浅灰沙发 + 深灰背景墙 + 木色点缀,色彩层次分明,营造出沉稳、现代的质感。

大面积落地窗引入充足自然光,搭配浅色系软装,让空间更显开阔通透。

餐厅效果图

餐桌居中,两侧预留充足通行空间,与左侧阳台、右侧过道形成流畅动线,避免拥挤。

餐桌尺寸与空间比例协调,桌椅布局满足日常用餐与临时待客需求,不浪费空间。

浅木色温润中和深灰餐椅的冷峻,搭配纯白墙面,冷暖平衡,尽显简约质感。

白纱帘过滤强光,自然光漫射全屋,搭配顶面筒灯,明暗层次自然,空间更显开阔。

厨房效果图

 遵循洗、切、炒的黄金三角布局,操作流程顺畅,大幅提升烹饪效率。

L 型柜体充分利用转角空间,嵌入式家电设计节省占地,让台面更整洁。

深灰吊柜搭配浅木色地柜,撞色设计弱化压抑感,质感沉稳大气。

无主灯配合柜底灯带,精准照亮操作区,兼顾实用性与氛围感。

主卧效果图

床居中摆放,两侧预留充足通道,与两侧衣柜、窗边形成自然动线,避免拥挤。

整面到顶衣柜 + 开放格设计,兼顾衣物收纳与展示,最大化利用空间。

浅木色柜体 + 灰白床品,色调柔和统一,营造出沉稳、放松的睡眠氛围。

白纱帘柔化自然光,搭配床头双台灯,明暗层次分明,提升空间温馨感。

次卧效果图

在有限空间内整合睡眠、办公、储物三大功能,布局紧凑且互不干扰。

床居中摆放,两侧预留充足通道,从衣柜到床再到书桌的动线自然流畅。

浅木色家具搭配蓝白床品,色调柔和清爽,营造出舒适放松的休憩氛围。

大窗户搭配白纱帘,引入充足自然光,让空间更显通透开阔。

卫生间效果图

玻璃隔断将淋浴区与洗漱区、马桶区完全分隔,有效避免水汽蔓延,提升使用安全性与空间耐用性。

洗漱、如厕、淋浴功能区互不干扰,符合日常使用逻辑,多人同时使用也不会产生冲突。

侧窗引入自然光线,搭配镜前灯带与筒灯,明暗层次柔和,既保证照明需求,又营造出静谧高级的氛围。

悬浮式浴室柜 + 镜柜组合,释放地面空间便于清洁,同时提供充足收纳,让台面保持整洁有序。

阳台效果图

在同一空间内整合了洗衣收纳与休闲社交两大功能,布局紧凑,互不干扰。

洗衣机与吊柜形成独立的家务区,休闲区则面向景观,动线清晰。

藤编家具与绿植搭配,营造出贴近自然的松弛感,提升空间治愈力。

无遮挡的大阳台设计,最大化引入城市景观,让空间更显通透开阔。

现代简约风洋房设计|简约高级氛围・舒适用功能布局

装修为什么选择 WayMorn 平台

装修一套房子,动辄投入十几万甚至上百万,这可能是普通家庭最大的一笔消费。然而,装修行业信息极不对称,很多业主直到入住后才发现各种问题。

装修不需要靠运气,需要靠制度。WayMorn 平台通过一套严谨的服务体系,以及“房屋检测+装修监理+商务监督”三重保障体系,帮您把控风险,让您装修无烦恼。

 

1. 独立的第三方人员

WayMorn平台首创的“房屋检测+装修监理+商务监督”三重保障体系,配备了签约房屋检测师、装修监理和商务监督员。这些人不属于装修公司,他们的职责就是代表您去监督装修公司。

 

2. 选择合格的装修公司

与WayMorn签约的装修公司有很多,每一家装修公司都是经过严格审核,并实地考察认证后才挑选出来的。在您准备装修时,平台提供三家及以上的装修公司供您选择,直到您满意为止。

如果您选择的是其他装修公司,WayMorn的“房屋检测+装修监理+商务监督”三重保障体系依然可以为您提供服务。

 

3. 商务审核帮您节省资金

不要只看装修总价,要看每一个施工项目的单价、面积、工艺描述和材料品牌规格,要看看有没有漏项缺项。

某些装修公司在初期报价时,经常会漏掉很多必不可少的项目,总价看起来很便宜。等您签了合同开始施工后,就会被要求追加资金,这时候您已经停不下来,只能增加预算。

我们的商务监督员会帮您审核装修报价,剔除不合理的收费项,确保每一分钱都花在实处;核查装修中每一个必不可少的项目,避免装修公司后期加价、追加装修项目等常见的问题。

 

4. 装修前检测房屋安全问题

我们的房屋检测师会在您装修设计前,检测房屋安全问题,告诉您哪些地方可以拆哪些地方不能拆,以及其他工程安全事项,在设计与施工前就有效规避风险,保障您和您的家人入住后的人身安全。

 

5. 装修材料的选择认证

装修一套房子会用到的材料种类很多品牌很多,各类品牌质量差异巨大,价格也差异巨大,仅仅看外表或者上网搜索某个品牌的装修材料情况,非专业人士很难辨别品牌真伪或质量好坏。

比如一块劣质瓷砖看起来很好,价格也低,但用一年后就会变色。而电线、水管、防水涂料这些埋在墙里的材料,一旦使用了劣质的,可能出现电路起火、水管爆裂等问题。而后期维修费用非常高,最关键的是新补的材料和原先的不可能完全一样,会影响全屋的整体美观。

因此,我们的专业人员会帮您把关,确保材料货真价实,从源头杜绝质量隐患。

 

6. 施工全过程节点管理

装修工艺标准不透明,会产生很多问题。很多施工员为了赶进度,不按标准工序操作。比如,同样的瓷砖,铺贴工艺不同,寿命完全不同,空鼓、开裂、墙面不平整等问题在交房时很难察觉,在入住一两年后问题才会出现,为时已晚,只能忍受。

我们的装修监理人将实施全过程节点管理,在每一道工序完成后(尤其是水电、防水),验收合格才进行下一道工序,保障施工质量。

 

7. 竣工后验收

装修工程全部结束后,并不意味着大功告成,可能还会有一些质量问题。

WayMorn 平台将会组织联合验收小组,对您的房屋从安全到质量进行全方位检查验收,发现问题,及时整改,直到全部合格。

 

装修是一件专业且复杂的大事,与其在开工后因为各种增项和质量问题去争吵,不如在开始前就选择一个专业的装修平台。

如果您正准备装修,欢迎联系 WayMorn,为您提供专业、透明、省心的全管家式装修服务,让您的装修结果真正符合预期。

×