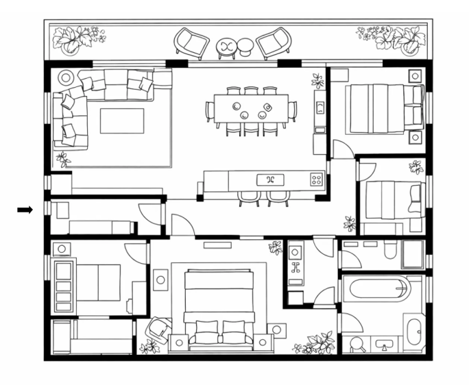
平面设计图(130平方米)
本款热带东南亚混搭风洋房,以「自然度假、松弛栖居」为核心,融合原生材质与暖调肌理,打造沉浸式
度假感居家空间。整体布局通透开阔,客餐厨一体的开放式公区串联全屋,衔接观景阳台引景入室。
三室双卫配置兼顾多代居住需求,主卧套间带独立卫浴与衣帽间,保障私密与舒适。
餐厨分区清晰,兼顾日常烹饪与聚会场景,实现度假氛围与实用生活的平衡。
本款热带东南亚混搭风洋房,以「自然度假、松弛栖居」为核心,融合原生材质与暖调肌理,打造沉浸式
度假感居家空间。整体布局通透开阔,客餐厨一体的开放式公区串联全屋,衔接观景阳台引景入室。
三室双卫配置兼顾多代居住需求,主卧套间带独立卫浴与衣帽间,保障私密与舒适。
餐厨分区清晰,兼顾日常烹饪与聚会场景,实现度假氛围与实用生活的平衡。
换鞋凳 + 收纳柜 + 装饰台形成连贯入户动线,满足换鞋、收纳、整理的核心需求。
耐脏的微水泥墙面与防滑瓷砖适配玄关高频使用属性,且与户外木质平台自然过渡。
藤编、原木与绿植搭配,打造温润质朴的归家氛围,消解入户疲惫。
圆形藤编镜打破墙面单调,多材质肌理碰撞,让简约空间兼具层次与质感。
L 型沙发 + 藤编椅的组合,既满足多人社交需求,又通过开放式布局,让客厅与户外景观无缝衔接,提升空间通透感。
天然石材墙面与实木家具搭配,既保证了客厅的耐用性,又能与户外绿植形成自然呼应,适配热带 / 东南亚风格的居住环境。
藤编吊灯、棉麻沙发与绿植的组合,打造出温暖质朴的度假风氛围,缓解日常压力,提升居住舒适度。
大地色石材、原木色家具与彩色抱枕形成对比,搭配复古花纹地毯,让空间在简约中兼具细节与质感。
餐厨一体布局,备餐、用餐、收纳动线短而高效,岛台设计兼顾操作与互动。
实木与藤编家具耐候性强,微水泥墙面和瓷砖易清洁,适配高频使用场景。
藤编吊灯、原木家具与窗外绿植呼应,营造温暖质朴的度假风氛围。
木梁吊顶、开放式置物架与绿植点缀,让空间在简约中兼具细节与质感。
床居中摆放,两侧预留充足动线,藤编休闲椅与床头柜形成放松角落,兼顾睡眠与休憩功能。
实木地板与藤编家具触感温润,微水泥墙面隔音耐脏,适配卧室静谧、高频使用的属性。
藤编吊灯、棉麻床品与绿植搭配,营造温暖质朴的度假风氛围,助于舒缓情绪、提升睡眠质量。
木质框架、编织床头与复古地毯形成肌理对比,色彩柔和统一,让空间简约而有质感。
独立玻璃淋浴房与浴缸、马桶区明确分隔,有效避免水汽蔓延,提升使用安全与清洁效率。
洗漱台居中,浴缸、马桶、淋浴依次排布,动线流畅,同时预留了绿植与收纳空间,兼顾实用与美观。
天然石材纹理、藤编收纳与绿植点缀,营造出温润质朴的度假风氛围,缓解日常压力。
石材墙面、木质柜面与金属五金形成肌理对比,暖光壁灯提升空间温度,简约而富有细节。
挂衣区、抽屉、开放式格架分区明确,适配衣物、配饰、箱包等不同物品,存取动线清晰。
整合了梳妆区、全身镜与换衣凳,满足更衣、化妆、整理等多重需求,空间利用率高。
实木柜体、藤编收纳与绿植点缀,延续了整体度假风质感,让收纳空间兼具温度与美感。
嵌入式灯带、复古藤编镜与天然材质肌理碰撞,在实用基础上提升了空间精致度。
床居中摆放,两侧预留充足动线,藤编休闲椅与床头柜形成放松角落,兼顾睡眠与休憩功能。
实木地板与藤编家具触感温润,微水泥墙面隔音耐脏,适配卧室静谧、高频使用的属性。
藤编吊灯、棉麻床品与绿植搭配,营造温暖质朴的度假风氛围,助于舒缓情绪、提升睡眠质量。
木质框架、编织床头与藤编装饰形成肌理对比,色彩柔和统一,让空间简约而有质感。
独立玻璃淋浴房与洗漱区、马桶区明确分隔,有效避免水汽蔓延,提升使用安全与清洁效率。
洗漱台、马桶、淋浴依次排布,动线流畅,同时利用开放格与藤编篮提升收纳,兼顾实用与美观。
天然石材纹理、藤编镜与绿植点缀,营造出温润质朴的度假风氛围,缓解日常压力。
石材墙面、木质柜面与藤编元素形成肌理对比,暖光壁灯提升空间温度,简约而富有细节。
书桌与书架一体化设计,形成完整的工作学习区,靠窗位置保证充足自然采光,提升专注度。
开放式格架与封闭抽屉分区明确,适配书籍、文具、摆件等物品,存取动线清晰,空间利用率高。
藤编吊灯、实木家具与绿植搭配,营造温暖质朴的氛围,缓解工作学习的疲惫感。
木质柜体、藤编元素与微水泥墙面形成肌理对比,色彩柔和统一,让空间简约而有质感。
藤编休闲椅 + 小圆桌的组合,适配阳台尺度,满足休憩、品茶需求,动线流畅无拥挤感。
大面积落地窗引入自然采光,朝向开阔绿植景观,最大化观景与采光体验,契合阳台休闲属性。
藤编灯具、木质地板与热带绿植搭配,暖光与黄昏自然光交融,营造出松弛治愈的度假感。
藤编、实木、亚麻等自然材质贯穿,色调温暖和谐,风格质朴高级,与户外绿植景观形成呼应。
装修一套房子,动辄投入十几万甚至上百万,这可能是普通家庭最大的一笔消费。然而,装修行业信息极不对称,很多业主直到入住后才发现各种问题。
装修不需要靠运气,需要靠制度。WayMorn 平台通过一套严谨的服务体系,以及“房屋检测+装修监理+商务监督”三重保障体系,帮您把控风险,让您装修无烦恼。
1. 独立的第三方人员
WayMorn平台首创的“房屋检测+装修监理+商务监督”三重保障体系,配备了签约房屋检测师、装修监理和商务监督员。这些人不属于装修公司,他们的职责就是代表您去监督装修公司。
2. 选择合格的装修公司
与WayMorn签约的装修公司有很多,每一家装修公司都是经过严格审核,并实地考察认证后才挑选出来的。在您准备装修时,平台提供三家及以上的装修公司供您选择,直到您满意为止。
如果您选择的是其他装修公司,WayMorn的“房屋检测+装修监理+商务监督”三重保障体系依然可以为您提供服务。
3. 商务审核帮您节省资金
不要只看装修总价,要看每一个施工项目的单价、面积、工艺描述和材料品牌规格,要看看有没有漏项缺项。
某些装修公司在初期报价时,经常会漏掉很多必不可少的项目,总价看起来很便宜。等您签了合同开始施工后,就会被要求追加资金,这时候您已经停不下来,只能增加预算。
我们的商务监督员会帮您审核装修报价,剔除不合理的收费项,确保每一分钱都花在实处;核查装修中每一个必不可少的项目,避免装修公司后期加价、追加装修项目等常见的问题。
4. 装修前检测房屋安全问题
我们的房屋检测师会在您装修设计前,检测房屋安全问题,告诉您哪些地方可以拆哪些地方不能拆,以及其他工程安全事项,在设计与施工前就有效规避风险,保障您和您的家人入住后的人身安全。
5. 装修材料的选择认证
装修一套房子会用到的材料种类很多品牌很多,各类品牌质量差异巨大,价格也差异巨大,仅仅看外表或者上网搜索某个品牌的装修材料情况,非专业人士很难辨别品牌真伪或质量好坏。
比如一块劣质瓷砖看起来很好,价格也低,但用一年后就会变色。而电线、水管、防水涂料这些埋在墙里的材料,一旦使用了劣质的,可能出现电路起火、水管爆裂等问题。而后期维修费用非常高,最关键的是新补的材料和原先的不可能完全一样,会影响全屋的整体美观。
因此,我们的专业人员会帮您把关,确保材料货真价实,从源头杜绝质量隐患。
6. 施工全过程节点管理
装修工艺标准不透明,会产生很多问题。很多施工员为了赶进度,不按标准工序操作。比如,同样的瓷砖,铺贴工艺不同,寿命完全不同,空鼓、开裂、墙面不平整等问题在交房时很难察觉,在入住一两年后问题才会出现,为时已晚,只能忍受。
我们的装修监理人将实施全过程节点管理,在每一道工序完成后(尤其是水电、防水),验收合格才进行下一道工序,保障施工质量。
7. 竣工后验收
装修工程全部结束后,并不意味着大功告成,可能还会有一些质量问题。
WayMorn 平台将会组织联合验收小组,对您的房屋从安全到质量进行全方位检查验收,发现问题,及时整改,直到全部合格。
装修是一件专业且复杂的大事,与其在开工后因为各种增项和质量问题去争吵,不如在开始前就选择一个专业的装修平台。
如果您正准备装修,欢迎联系 WayMorn,为您提供专业、透明、省心的全管家式装修服务,让您的装修结果真正符合预期。